鞍山市中盈工業泵制造有限公司
辦公地址:鞍山市鐵東區科技路52號
聯系電話:0412-5236608
0412-5236622
0412-5236633
振動篩、給料機
首頁>產品展示>振動篩、給料機
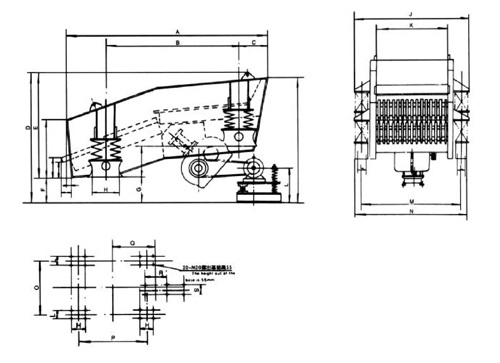
GZT型振動棒條給料機
添加時間:2017-05-10

一、概述
本機系機械式振動給料篩分機。主要用于破碎機前大塊物料的均勻給料同時,由于棒條篩面的作用又能除掉泥土等細碎物料達到篩分功能,以使破碎達到****工作能力。
該機由電機通過角帶驅動箱式振動器,使給料機產生直線振動軌跡。機體結構為框架式,環樁柳釘鉚接,襯板,棒條采用錳鋼制造,結構強度高,耐磨損,耐沖擊。特點適合于做建筑石料、金屬礦石大破碎的給料用。
二、工作原理


三、規格性能

下一條: GZG系列自同步慣性振動給料機